INTERIOR DESIGN
Our Services
Our design service is tailored to transform your space with functionality at the forefront. Whether its a new build or renovation we would love to get in touch.
Our services include:
Space Planning
3D Renders
Joinery Design
Finishes + Fittings Selections incl. exterior selections
Furniture + Art Curation
Lighting + Electrical Plans + Selections
FF&E Schedule
Comprehensive Construction Documentation
Obtaining supplier quotes + liaising of delivery
Connecting + liaising trades
Ongoing construction support
Sectors we service
RESIDENTIAL
COMMERCIAL
HOSPITALITY
RETAIL
HEALTHCARE
Our Process
CONCEPT
THE VISION.
Deliverables include:
Initial Briefing Meeting & Site Measure
Moodboards & Inspiration Imagery to convey design intent
Initial Space Planning
Initial Finishes Palette
2.DESIGN DEVELOPMENT
THE DESIGN.
Deliverables include:
Develop selected options for each space
Provide elevations & 3D views to further show design intent
Finalise Finishes Selections
3.DOCUMENTATION
THE DETAILS.
Deliverables include:
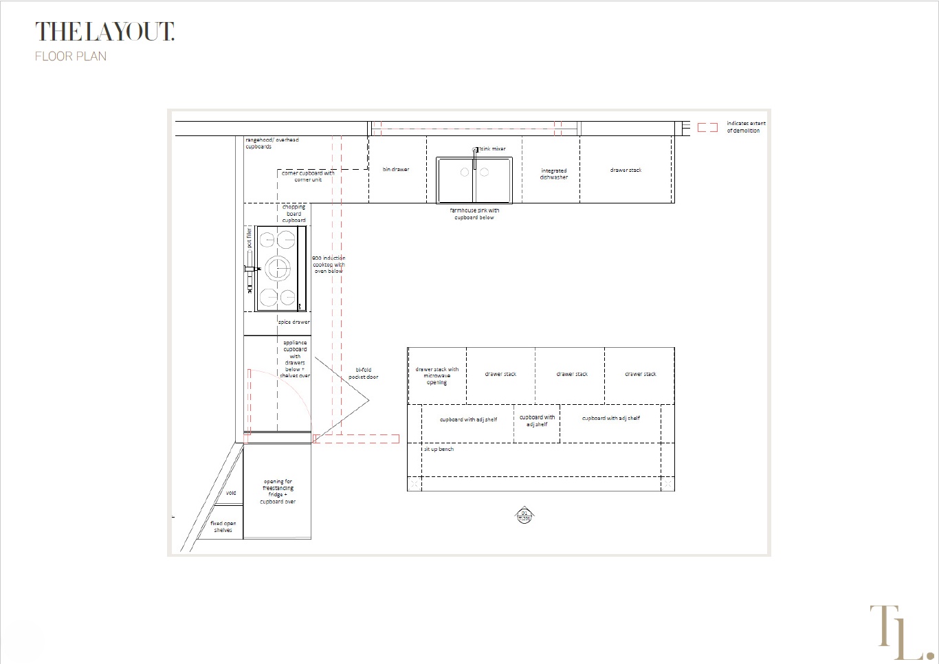
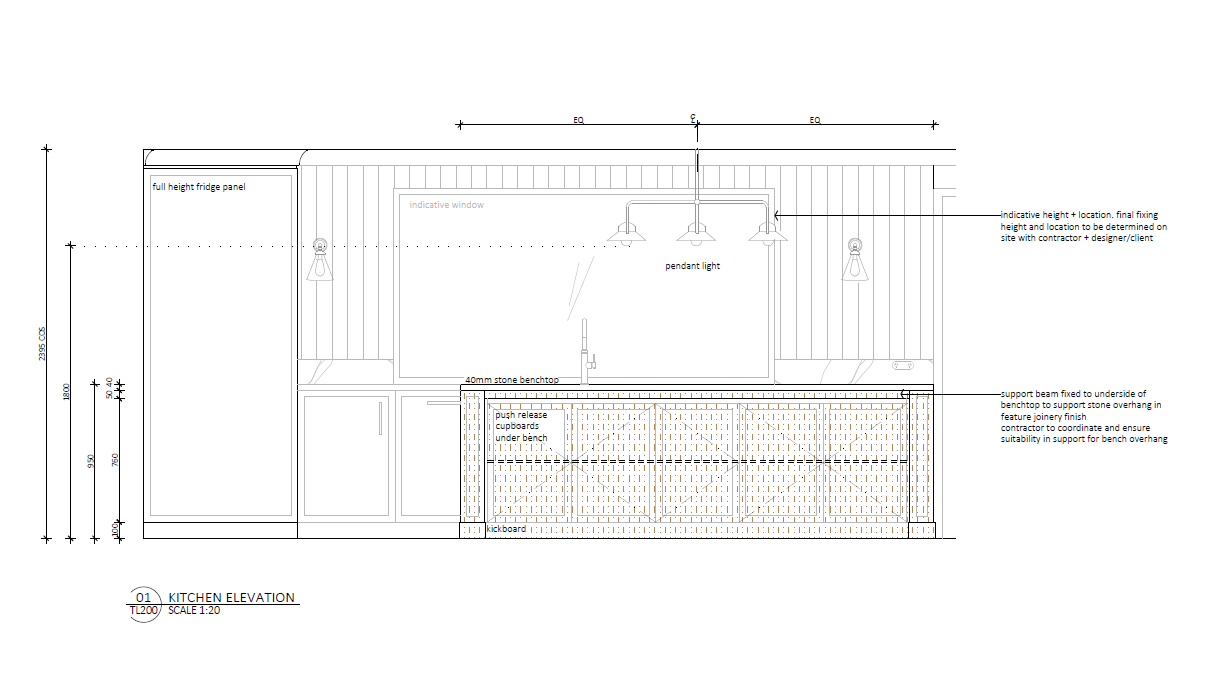
Dimensions and construction notes added to drawing package
FF&E Schedule Finalised
4.CONSTRUCTION
THE HANDOVER.
Deliverables include:
Documentation package issued to builders & contractors for pricing and construction
Ongoing construction support as required

